S B J Manor Iragbo, Badagry
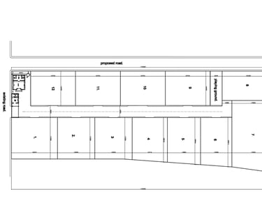
The S. B. J Manor Project. This endeavour aimed to transform an underserved residential area into a vibrant, mixed-use community space, blending residential, commercial, and public areas seamlessly.
S.B.J Manor, Iragbo, Badagry, Lagos – A Harmonious Blend of Nature, Culture, and Modern Living
Welcome to S.B.J Manor, an exclusive real estate development strategically nestled in Iragbo, Badagry, Lagos—a serene coastal town rich in history, culture, and natural beauty. This master-planned estate is designed to offer an elegant fusion of nature-inspired living and modern comforts, providing an unmatched lifestyle for residents and investors seeking a home in one of Lagos’ most promising locations.
A Home in the Heart of Nature
S.B.J Manor is set against the breath-taking backdrop of Badagry’s lush greenery, pristine beaches, and tranquil lagoons. The estate is uniquely positioned to capture the essence of the local terrain, featuring abundant natural landscapes, coastal breezes, and stunning views, all of which contribute to a serene and eco-friendly environment. The integration of green spaces, tree-lined streets, and sustainable architecture ensures that residents enjoy not just a home, but a refreshing connection to nature.
Community and Cultural Influence
Badagry is a town steeped in history and cultural significance, known for its role in Nigeria’s rich heritage and as a gateway to West Africa. The development of S.B.J Manor is deeply influenced by this vibrant cultural tapestry, incorporating architectural elements that reflect traditional aesthetics combined with modern designs. The estate fosters a sense of community, inspired by the warm and hospitable spirit of the people of Badagry. With nearby historical landmarks, cultural festivals, and thriving markets, S.B.J Manor offers a living experience that is both enriching and inspiring.
Uniqueness and Distinctive Living
S.B.J Manor sets itself apart from other developments in the region through its distinctive offerings:
Eco-Friendly Infrastructure – Homes are designed with sustainability in mind, utilizing energy-efficient materials, solar-powered streetlights, and rainwater harvesting systems.
Modern Amenities in a Natural Setting – Enjoy the perfect balance of urban convenience and countryside peace, with well-paved roads, a 24/7 security network, recreational parks, and a community clubhouse.
Proximity to Key Destinations – The estate is strategically located within easy reach of Badagry’s beaches, historical sites, and the Lagos-Badagry Expressway, ensuring seamless connectivity to Lagos’ bustling metropolis.
Affordable Luxury – With flexible payment plans and a range of housing options to suit different budgets, S.B.J Manor provides an accessible gateway to premium real estate in a rapidly developing corridor.
Invest in the Future of Badagry
S.B.J Manor is more than just a residential estate—it is a vision for the future, offering a unique investment opportunity in one of Lagos’ fastest-growing regions. Whether you are looking for a serene getaway, a family-friendly community, or a strategic real estate investment, S.B.J Manor presents an unparalleled choice.
Secure your place in this exceptional development today! Experience the harmony of nature, culture, and modernity at S.B.J Manor, Iragbo, Badagry—where your dream home meets a timeless legacy.
For inquiries and site visits, contact us today!



Challenge:
The primary challenge for the Iragbo community in Badagry, Lagos, is a major infrastructure challenge. The roads are unpaved, leading to accessibility issues, especially during the rainy season when flooding becomes common. Poor drainage systems worsen the situation, causing property damage and health risks from stagnant water.
Secondly, the project required innovative solutions to integrate sustainable, eco-friendly building practices, aligning with our commitment to environmental responsibility. The complex nature of this mixed-use development demanded a delicate balance between modern functionality and historical preservation.
Our Solution:
Our approach began with extensive consultation with local historians, residents, and environmental experts. We employed a design that paid homage to the area's historical past, using reclaimed materials and incorporating existing structures into the new design wherever possible.
To address these issues, a phased infrastructure development plan is proposed. The first step would involve constructing well-planned drainage systems to prevent flooding, followed by the paving of main access roads to enhance mobility. Collaborating with the Lagos State government and private utility companies, reliable electricity and clean water supplies will be prioritized. Finally, community engagement will be crucial to ensure sustainable maintenance and future upgrades, improving the quality of life for residents.
In terms of sustainability, we implemented cutting-edge green technologies as an optional plan. This included the installation of solar panels, green roofs, and advanced water recycling systems. Our construction methods prioritized energy efficiency and minimal environmental impact, utilizing locally sourced materials and reducing waste through precise planning and execution.




